Osrednja vsebina
Pokličite nas
07 49 64 149
Pišite nam
info@zbt.si

Poziv zainteresirani javnosti k sodelovanju pri pripravi OPPN za območje Trgovskega centra Brežice ob Cesti svobode – vzhod

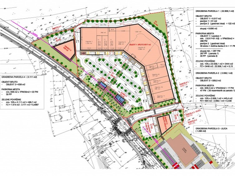
Seznanjamo vas, da je občina na podlagi podane pobude investitorja pristopila k pripravi Občinskega podrobnega prostorskega načrta za območje Trgovskega centra Brežice ob Cesti svobode – vzhod (v nadaljevanju OPPN). Predmet prostorskega akta se nanaša na izgradnjo trgovskega centra, ki ga v osnovi tvorijo trije objekti, na prometno ureditev z vzpostavitvijo povezovalne ceste, urbano ureditev pasu ob Cesti svobode in izgradnjo potrebne infrastrukture. Vse podrobnosti so objavljene v gradivu na spodaj navedeni povezavi.


Občina bo na temo priprave tega prostorskega akta organizirala javni posvet, na katerega vljudno vabimo predstavnike vaše Krajevne skupnosti dne, 28.6.2022, ob 16. uri v Mestno hišo v Brežicah. Namen posveta je predstavitev nameravane ureditve in postopka priprave OPPN, predvsem pa želimo v zvezi s temi ureditvami pridobiti vaša mnenja, predloge in usmeritve, ki jih je potrebno smiselno upoštevati pri nadaljnji pripravi akta. Posvet bo javen in se ga bo lahko udeležila tudi ostala zainteresirana javnost.Gradivo pobude za izdelavo OPPN bo javno dostopno tudi na spletni strani Občine Brežice v času od 13.6.2022 do 4.7.2022 na povezavi: https://www.brezice.si/sl/prostor, pod naslovom OPPN za območje Trgovskega centra Brežice ob Cesti svobode-vzhod – Pobuda.

Za morebitne dodatne informacije je kontaktna oseba Tanja Rus, tanja.rus@brezice.si.
Poziv zainteresirani javnosti k sodelovanju pri pripravi OPPN za območje Trgovskega centra Brežice ob Cesti svobode – vzhod
NAZAJ
×
×

Prikaz za slepe in slabovidne

Barva ozadja in pisave


Izjava o dostopnosti